For sale
Columna
City Center, Chisinau
photo249758 photo249759 photo249760 photo249761 photo249762 photo249763 photo249764
photo_low249758
photo_low249759
photo_low249760
photo_low249761
photo_low249762
photo_low249763
photo_low249764
phone img
724,000 €
Property Type
Commercial, Commercial
Surface ( М2)
250 m2
Parking
Open
REMARK - cod
T102905238
Go Back
Leave a request for viewing
Send
Description

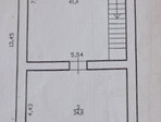
Vânzare clădire separată - spaţiu comercial amplasat pe str. Columna intersectie cu V. Alecsandri la prima linie cu intrare directa din stradă!

- Suprafata de 250 mp. în 3 nivele
- Fiecare nivel câte 2 open space + bloc sanitar, cu 2 intrări separate;
- open space;
- ușor de replanificat;
- amplasat la prima linie;
- intrare secundară;
- vizibilitate maximă;
- infrastructură dezvoltată cu flux intens de pietoni,
- acces direct la transportul public în orice direcție a orașului.

Ideal potrivit pentru clinică stomatologică, showroom de haine, salon, oficiu, centru de medicină, etc.

Preț: 724.000 €



Our Viber

079103020

Now you can get a consultation
anywhere you are