For rent
Columna
City Center, Chisinau
photo240188 photo240186 photo240187 photo240189 photo240190
photo_low240188
photo_low240186
photo_low240187
photo_low240189
photo_low240190
phone img
15 €
Property Type
Commercial, Commercial
Surface ( М2)
325 m2
Parking
Underground
REMARK - cod
T101446347
Go Back
Leave a request for viewing
Send
Description

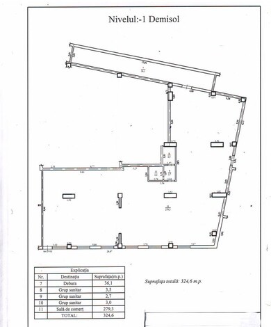
Spre chirie  spațiu comercial la demisolul blocului Residențial Old Town Residence.
Amaplasare ultracentrală pe str. Columna. 

Suprafața totală de 325 mp.
Conectat la toate rețele (apeduct, electricitate 380 W, canalizare, încălzire podele calde și calorifere , sistem de ventilare pentru horeca, ș.a).

Potrivit pentru horeca, fitness, yoga, sală de forță, saloane de frumusețe, tatoo si altele. 

Preț: 15 € incl. TVA

Benefits
  • Water supply
  • Multiple glazing
  • Exit to the road / first line
  • Heating system
  • Parking places
  • Video surveillance


Our Viber

079103020

Now you can get a consultation
anywhere you are