Продажа
Ștefan cel Mare
Центр, Кишинев
photo247595 photo247596 photo247597 photo247598 photo247599 photo247600 photo247601 photo247602 photo247603 photo247604 photo247605
photo_low247595
photo_low247596
photo_low247597
photo_low247598
photo_low247599
photo_low247600
photo_low247601
photo_low247602
photo_low247603
photo_low247604
photo_low247605
phone img
266,000 €
Назначение
Коммерческое
Площадь ( М2)
131 m2
REMARK - cod
T102624246
Вернуться
Оставить заявку на просмотр
Отправить
Описание

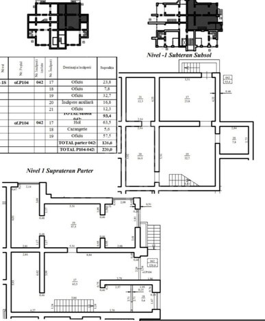
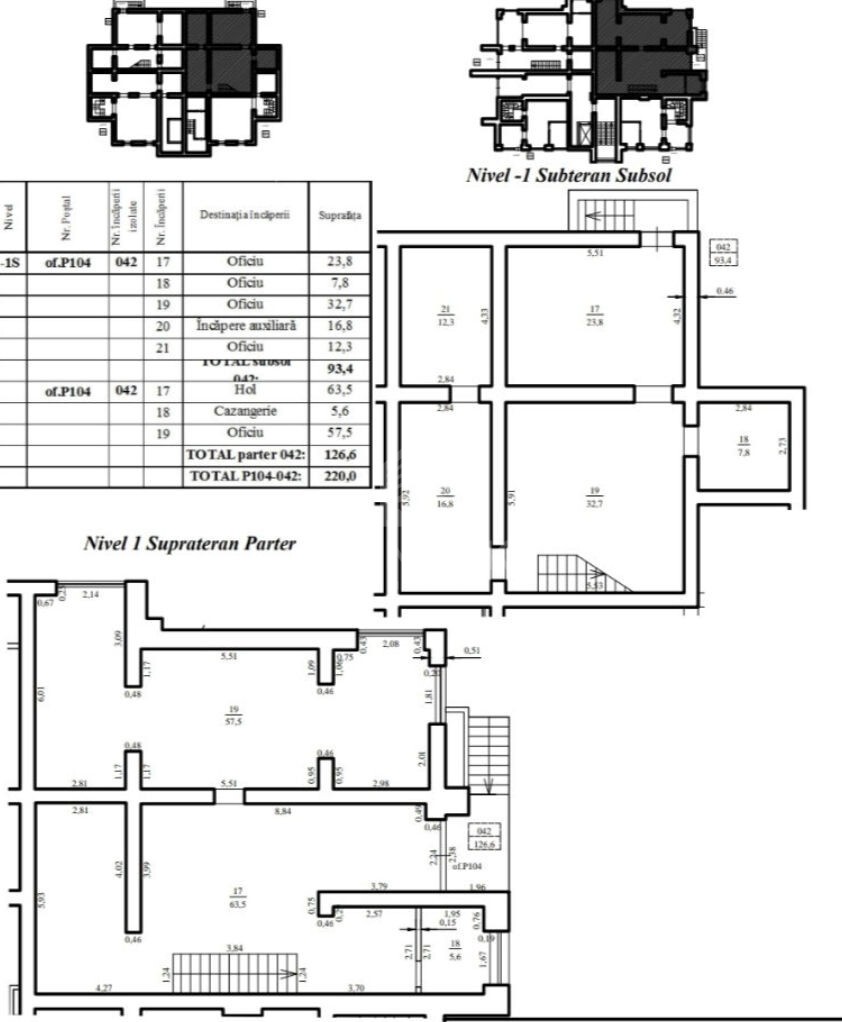
Vânzare spațiu comercial amplasat în sectorul Centru, bd. Ștefan cel Mare și Sfânt.
Imobilul are suprafața de 131 mp, fiind poziționat la parterul unui bloc nou.

– variantă albă;
– încălzire autonomă;
– înălțimea tavanelor 3 m;
– se predă cu pardosea caldă instalată, cazan individual pe gaz.

Locație ultracentrală! Ideal pentru o clinică stomatologică sau orice activitate comercială sau oficiu.

Preț: 266.000 € + TVA

Преимущества
  • Газопровод
  • Водоснабжение
  • Выход на дорогу / первую линию
  • Парковочные места
  • Видеонаблюдение


Мы в Viber

079103020

Теперь вы можете получить консультацию
в любом месте