Продажа
Nicolae Milescu Spatarul
Чеканы, Кишинев
photo254223 photo254224 photo254225 photo249735 photo249736 photo249737 photo249738 photo249739 photo249740 photo249741 photo249742 photo249743 photo249744
photo_low254223
photo_low254224
photo_low254225
photo_low249735
photo_low249736
photo_low249737
photo_low249738
photo_low249739
photo_low249740
photo_low249741
photo_low249742
photo_low249743
photo_low249744
phone img
464,000 €
Назначение
Коммерческое, Коммерческое
Площадь ( М2)
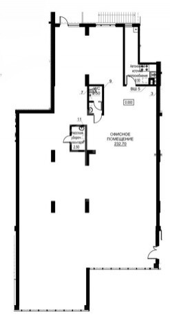
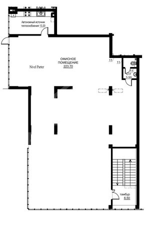
232 m2
Парковка
Открытая
REMARK - cod
T102904545
Вернуться
Оставить заявку на просмотр
Отправить
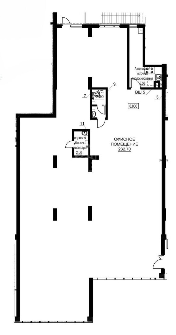
Описание

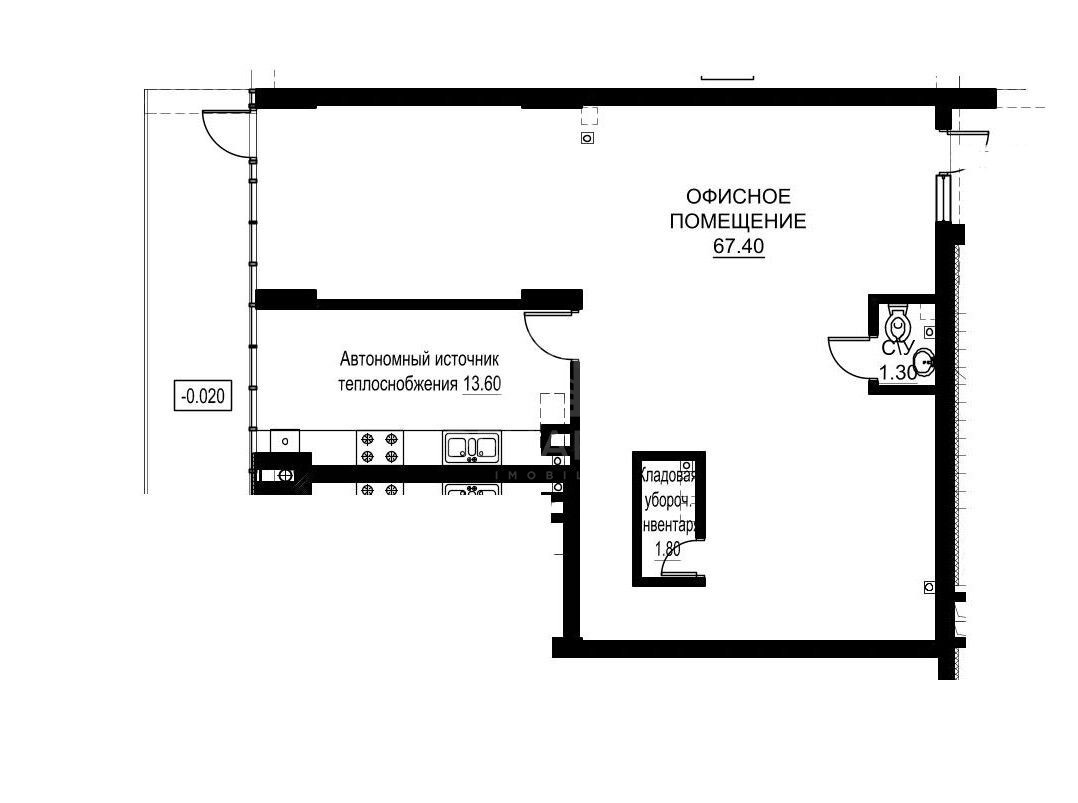
Vânzare spațiu comercial amplasat la parter în bloc nou, sectorul Ciocana, str. Milescu Spătaru. 

- imobilul are suprafața de 232 mp; 
- open space;
- varianta albă;
- încălzire autonomă;
- geamuri termopane/panoramice;
- prima linie;
- intrare separată;
- locuri de parcare.

Amplasat într-o zonă solicitată cu flux intens de pietoni și auto, acces liber la transportul public.

Preț: 464.000 €

Преимущества
  • Газопровод
  • Стеклопакет
  • Выход на дорогу / первую линию
  • Автономное отопление
  • Парковочные места
  • Сигнализация
  • Видеонаблюдение


Мы в Viber

079103020

Теперь вы можете получить консультацию
в любом месте