Продажа
Дачия
Ботаника, Кишинев
photo225750 photo225749 photo225751 photo225748
photo_low225750
photo_low225749
photo_low225751
photo_low225748
phone img
180,000 €
Назначение
Коммерческое, Коммерческое
Площадь ( М2)
300 m2
Парковка
Открытая
REMARK - cod
T85940734
Вернуться
Оставить заявку на просмотр
Отправить
Описание

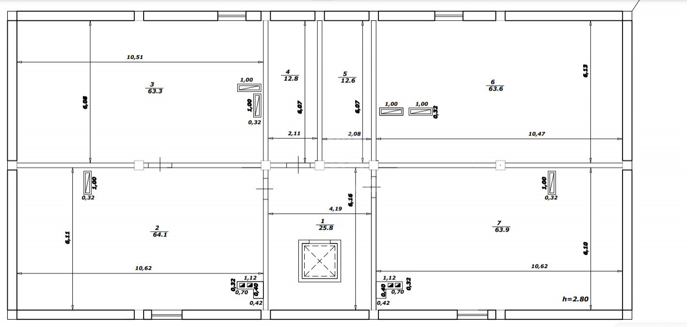
Продается коммерческое помещение, расположенное  в сект. Ботаника, по ул.  Дачия.
Общая площадь: 300 кв.м.
Планировка: 4 больших помещения, сан.блок.
Характеристики:
- Первая линия;
- Демисоль, новый блок;
- Охрана и видеонаблюдение;
- Общественный транспорт;
- Парковка открытого типа.

Подходит для спортзала или любого вида деятельности.

Preț: 180000 €

Преимущества
  • Газопровод
  • Водоснабжение
  • Электроэнегрия
  • Стеклопакет
  • Выход на дорогу / первую линию
  • Автономное отопление
  • Парковочные места
  • Видеонаблюдение


Мы в Viber

079103020

Теперь вы можете получить консультацию
в любом месте