Продажа
Сихаструлуи
Кодру, Пригород
photo246696 photo246697 photo246701 photo246702 photo246703 photo246700 photo246699 photo246698 photo246693 photo246692 photo246695 photo246694
photo_low246696
photo_low246697
photo_low246701
photo_low246702
photo_low246703
photo_low246700
photo_low246699
photo_low246698
photo_low246693
photo_low246692
photo_low246695
photo_low246694
phone img
320,000 €
Площадь ( М2)
300 m2
Площадь участка, сот
7
Всего этажей
3
Балкон
2
Санузел
2
Парковка
Гараж
REMARK - cod
M102506394
Вернуться
Оставить заявку на просмотр
Отправить
Описание

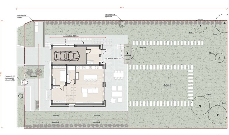
Этот дом — идеальный выбор для семьи, которая ценит пространство, изысканность и уединение.

- Общая площадь: 300 кв. м
- Полезная жилая площадь: 185 кв. м
- Подвал: просторный подвал
- Первый этаж: гостиная open-space, объединённая с кухней, спальня, санузел, котельная
- Второй этаж: 3 спальни/кабинет, санузел, панорамная терраса
- Общий участок: 7 соток
- Благоустроенный сад, мощёные террасы — 100 кв. м
- Колодец с питьевой водой, резервуар для воды, современные заборы и автоматические ворота
- Плоская профессионально гидроизолированная крыша
- Tепловой насос воздух-вода, система тёплого пола
- Камин
- Канализация, вода и электричество — полностью установлены

Идеально подходит для активной семьи, которая ищет тишину, чистый воздух и элегантное пространство, готовое стать настоящим домом.

Preț: 320 000 €

Преимущества
  • Водопровод
  • Асфальтированная дорога
  • Газопровод
  • Стеклопакет
  • Ворота с д/у
  • Школа
  • Сигнализация
  • Видеонаблюдение


Мы в Viber

079103020

Теперь вы можете получить консультацию
в любом месте